Skip to main content
Marsh

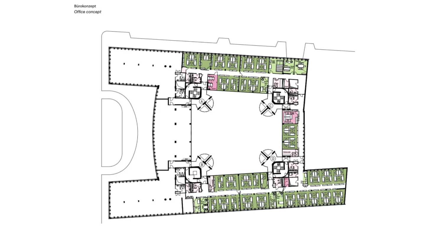
Marsh, Hamburg: Space optimization, Room concept & Design

Client

Marsh GmbH

Location

Hamburg

Services

property analysis,capacity planning, space allocation program, tenant support in negotiating lease, definition of fit-out standard, colour an material concept, layout design, design of office support spaces, project management

Space

2.200 qm BGF/sqm GFA

Workplaces

120

Creation Date

Building Architect

Kleffel, Köhnholdt, Gundermann, Hamburg
Marsh
MARSH HAMBURG
MARSH HAMBURG
MARSH HAMBURG
Marsh Hamburg
LEGENDE